Christian Kerez: Leutschenbach school
Saatlenfussweg 3, 8050 Zürich, Switzerland
Architect
Landscape architect
4D Landschaftsarchitekten, Bern
Structural engineer
Schwartz Consulting, dsp Ingenieure und Planer AG
Client
City of Zurich
Year
2006-2009
Budget
56.5 Mio. CHF (BKP 1-9)
Web architect
Photographs
Hannes Henz / Courtesy of Christian Kerez
Public access
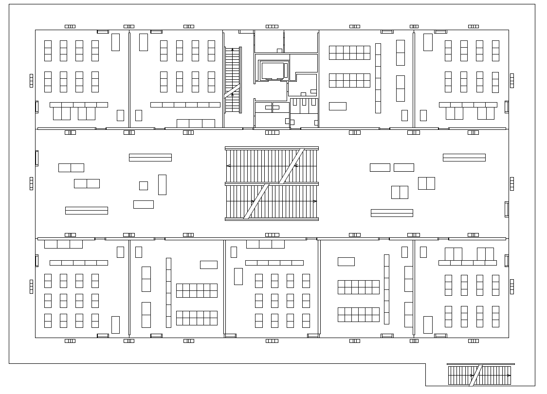
In order to preserve the spaciousness of the site, all the rooms inside the building were reduced to the lowest common denominator and stacked atop one another, with public functions accommodated in mezzanines.
The classrooms are housed in a three-story steel-framed structure; the gymnasium, of approximately the same height, is surrounded by a continuous frame structure resembling that of the classroom block. The result is not merely a gymnasium on top of a school building, but a structure that consists of repeating references on multiple levels. On the ground floor, the building is contracted into a minimal core area.
The entire façade area of the classroom block hangs from the projecting frame structure of the floor, and forms a roof extending more than ten meters out over the playground. The school building has no hallways: all the classrooms open on to large recreational areas that can also be used for teaching activities.
The large double stairway divides the primary school from the secondary school and is likewise incorporated into this recreational-and-classroom area.
On the fifth floor, the two stairways running in opposite directions meet at a large foyer which provides access to all the public areas, such as the auditorium and library. The gymnasium, the largest and highest space, crowns the whole building.
The rooms, stacked above one another, vary in size and height. They constitute variations on the same overall spatial and architectural concept.
(Text description by the architects; published at Archdaily.com)
Site area 16 500 m2
Volume 51 000 m3
Gross area (Geschossfläche) 9 840 m2
Net area (Hauptnutzfläche) 6 946 m2
12 classrooms grammar school
10 classrooms middle school
