Frank Lloyd Wright: Falling Water, PA, USA
Fallingwater
Architect
Client
Edgar and Liliane Kaufmann
Year
1936 - 1939
Budget
$155,000 ($2.8 million in 2020)
Web architect
Photographs
Western Pennsylvania Conservancy; Wikimedia Commons
Public access
They met Wright in 1934, when their son, Edgar Jr. spent six months in the Taliesin Fellowship. Knowing that Wright shared their love of nature, they commissioned him to build a summer home for the family’s weekend retreat in Bear Run, PA. Wright recognized that his clients wanted something that would celebrate the landscape of their favorite country hideaway in an innovative way. Determined to build over the stream that punctuated the property, Wright remarked that rather than simply look out at it, he wanted the Kaufmanns “to live with the waterfall…as an integral part of [their] lives.”
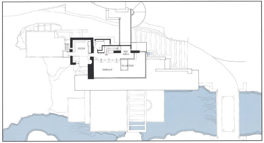
In Fallingwater, Wright anchored a series of reinforced concrete “trays” to the natural rock. Cantilevered terraces of local sandstone blend harmoniously with the rock formations, appearing to float above the stream below. The first floor entry, living room and dining room merge to create one continuous space, while a hatch door in the living room opens to a suspended stairway that descends to the stream below. Glass walls further open the rooms to the surrounding landscape. In 1938, Wright designed additional guest quarters set into the hillside directly above the main house and linked by a covered walkway. Fallingwater remained the family’s beloved weekend home for 26 years. In 1963 the Kaufmanns donated the property to the Western Pennsylvania Conservancy, together with 1,543 acres of surrounding land. It opened its door as a museum in 1964 and has since hosted more than five million visitors.
“Great architecture, like any great art, ultimately takes you somewhere that words cannot take you at all. Fallingwater does that the way Chartres Cathedral does that. There’s some experience that gets you in your gut and you just feel it, and you can’t quite even say it. My whole life is dealing with architecture and words, and at the end of the day, there is something that I can’t entirely say when it comes to what Fallingwater feels like.” — Paul Goldberger, Pulitzer Prize-winning architectural critic
(text source: franklloydwright.org)
