Diener & Diener: Swiss Re Headquarters, Zürich
Mythenquai 50, 8002 Zürich
Architect
Diener & Diener Architects, Basel + Proplaning AG, Basel
Landscape architect
Vogt Landschaftsarchitekten, Zürich
Structural engineer
Ernst Basler + Partner AG, Zürich
Client
Swiss Re Investments AG, Zürich
Year
2008 - 2017
Web architect
Photographs
Walter Mair
Public access
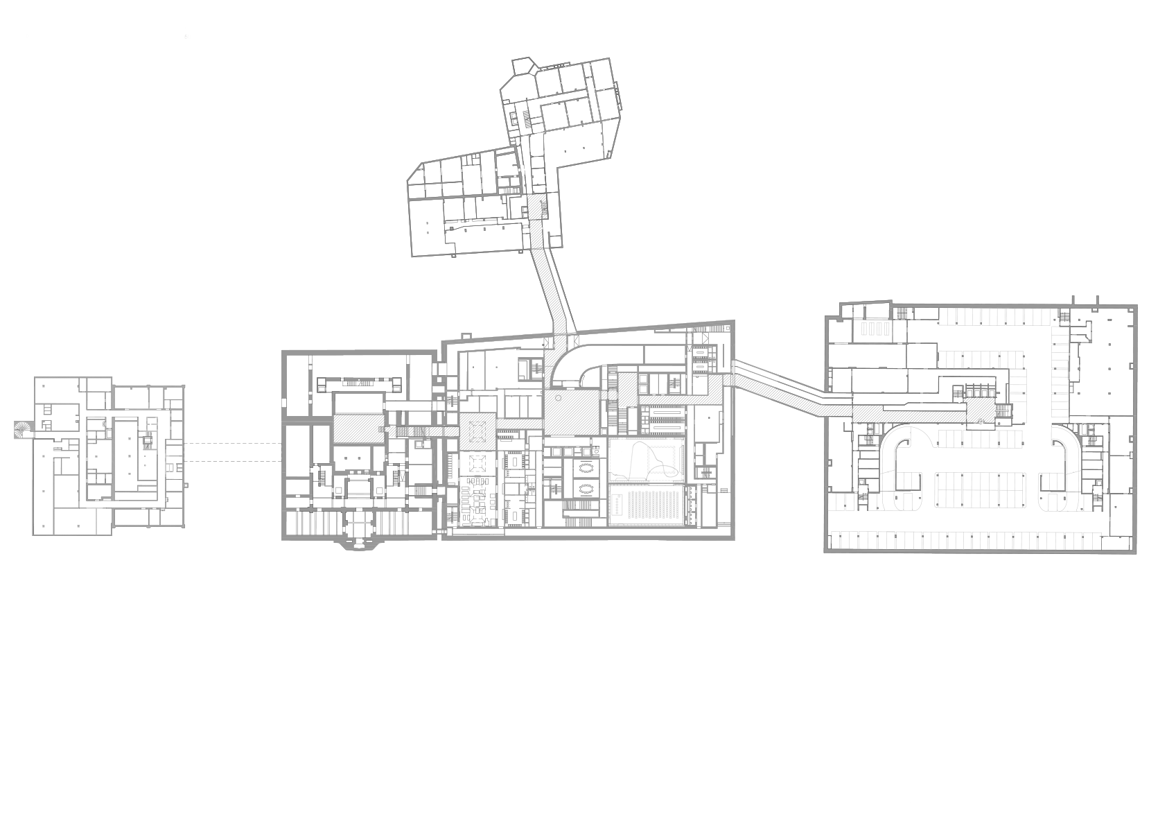
The undulating glass building designed for employees of the global reinsurer Swiss Re is the newest structure in a row of forceful, historical insurance buildings along Zurich’s Mythenquai. Its form emerges from an interplay of different elements: a clear volume embedded within its urban surroundings, free-flowing space on the interior created by overlapping decks inside, and its structural integration with the neighbouring Swiss Re buildings. It communicates to the outside, similar to a monumental glass vestibule, reflects the building’s networking function, both vertically and horizontally, within the ensemble of Swiss Re buildings referred to as Campus Mythenquai. The new program called for the workplace for 1100 employees, about three times the number of workplaces compared to the previous building of the 1960s, which the new building replaced. The new building features interconnected, open-plan work areas and was constructed in accordance with Switzerland’s Minergie-P and Minergie-ECO standards, as well as LEED-Platinum certification from the USA.
The open-slab structure is based on a 72-by-58-meter rectangle. The building is spatially connected to the other Swiss Re buildings on the first basement level, so that the overarching functional areas are connected from the inside. At ground level, a covered driveway and the building’s main entry open up towards the Mythenquai. The reception area connects directly to an auditorium embedded two storeys into the ground, and to two lightwells (atria), roofed over with glass, that span the height of the building. The five upper storeys stacked around these interior courtyards form an enormous, expansive organism in which every office storey is accorded equal status. The atria provide illumination, and their horizontal windows can be opened.
When planning began, Swiss Re commissioned nine art projects that extend the tradition with which the company’s important art collection has long contributed to Swiss Re’s working environment. The large scale works by Martin Boyce, Kerstin Brätsch Valentin Carron, Marc Camille Chaimowicz and Mai-Thu Perret, Helmut Federle, Guyton\Walker, Philippe Parreno, Willem de Rooij and Heimo Zobernig form spatial interventions, curated by Beatrix Ruf.
The idea behind the building is a structure that invites communication. Unlike the three underground storeys made of mass-wall concrete, the volumes aboveground are made of a delicate steel construction with over 13-meter spans. The permeability and spaciousness of the structure, establishing a relationship with the surrounding panorama on all sides, was already clear in the structural-shell phase. This makes the building very flexible, a prerequisite so that it has long-term usefulness and can adapt to evolving needs.
The open-plan office areas in the upper storeys are based on a “shared desk” concept; the workstations are not planned to be personalized. The design and functionality of this concept were developed in cooperation with Sevil Peach, London, who has worked closely with Diener & Diener on other projects in the past.
The facade structure, featuring an outer shell made of undulating glass and an inner thermal shell with floor-to-ceiling windows, offers views over the surroundings in all directions, and incorporates loggias into the five upper storeys. At the topmost storey, where more customer spaces are found, a terrace opens out over the lake.
The undulations in the glass facade bear a resemblance to certain traditional elements of architectural design, for instance a row of columns. Yet at the same time the facade resembles a thin membrane whose form results from inner and outer vibrations.
By using large waves with a wavelength of 2.4 meters for the first four storeys, and small waves with a wavelength of 1.2 meters for the two storeys above, the volume is differentiated into a main body and a slightly tapered-off roof area. This gives the facade a precise relationship to the hipped roof of the Altbau and the attic story of the Mythenschloss; the partition corresponds to those of the neighbouring buildings.
Each individual undulating glass pane hangs on stainless steel brackets, and is affixed to rods near where it overlaps with the next undulating wave. The rods tie into the structural frame on the fifth upper story and near the uppermost slab. The undulating glass shell that surrounds the slabs is therefore – both in a technical sense and in a literal, visual sense – a true curtain wall.
The relief of undulating glass raises the structure beyond its position in the built environment in a row of large buildings along the Mythenquai, and establishes a relationship with the site’s landscape.
As darkness falls at the end of a working day until midnight, the light from Zurich’s “Plan Lumiere” replaces the reflection of the glass waves.
(text source: website architect)
