Cavigelli & Associates: Mountain Hut Briula
46.745583, 9.538056
Architect
Design team
Christoph Cavigelli
Structural engineer
Toni Cavigelli
Year
2018
Web architect
Photographs
Bruno Helbling
Public access
There are not many places like this. The project plays on the border between inside and outside, old and new, visible and invisible. The picturesque beauty of rural life is paired with modern comfort and the wide view of the Lenzerheide heath.
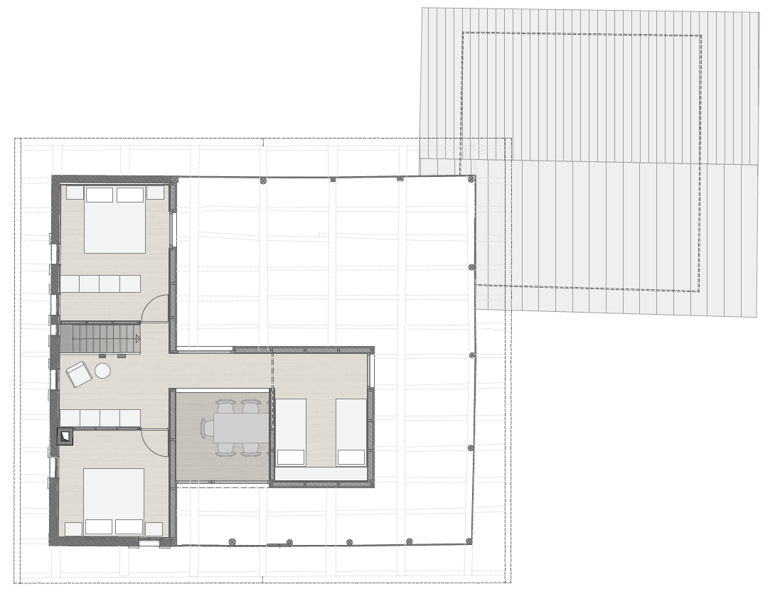
The alpine hut Briula is situated overlooking the municipality of Valbella on a hill about 1,800 metres above sea level. The original facility consists of a cowshed with a living area and hayloft above, as well as an attached shed with two untouched servants’ chambers.
The residential section was once used by Hotel Schweizerhof in Lenzerheide, founded in 1906, as a venue for day trips with guests from all over the world, who came to enjoy the fresh mountain air and the wonderful view of the Julier pass and the lake Heidsee.
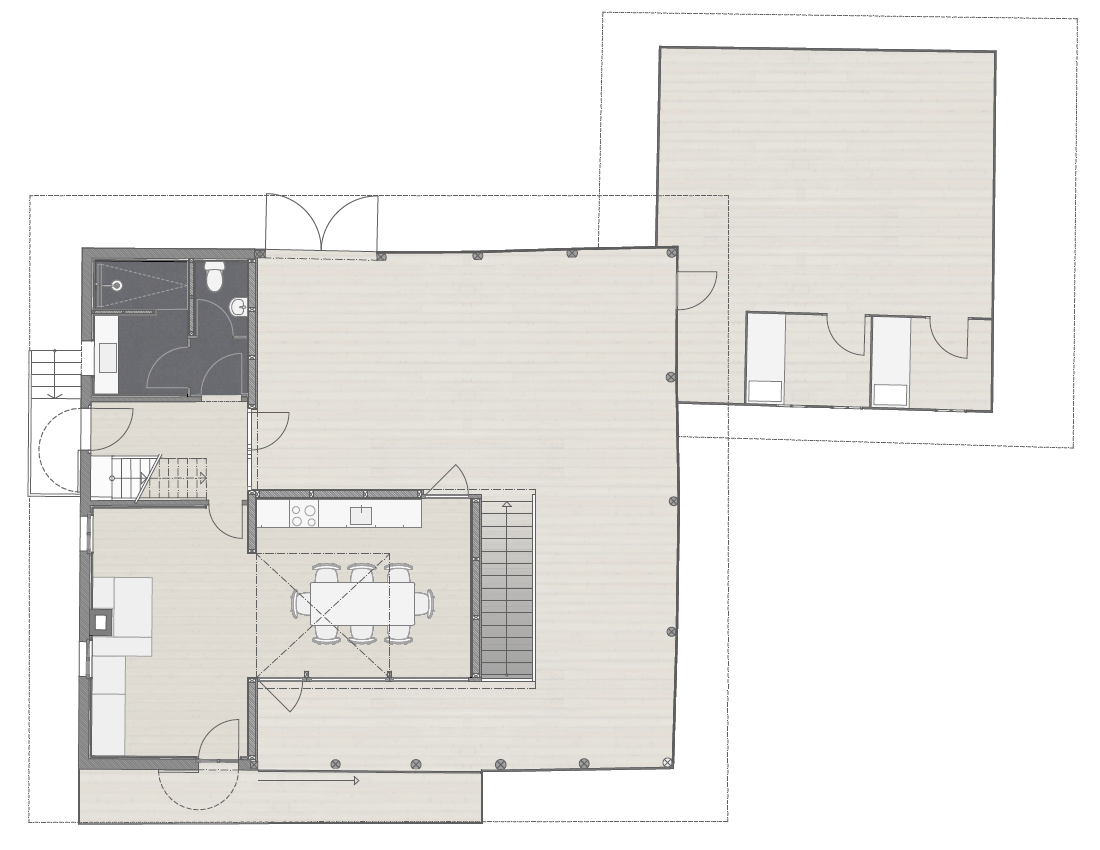
The building’s exterior remained untouched by the renovation and expansion works so as not to disturb the harmonious location and at the same time not to give prominence to the new interior. Then came the idea to extend the living space inwards, opening up to the landscape through a new gateway to the south, thus exposing the interior to the exterior space.
The House in the stable
The new structure with its geometric form is striking and yet distinct from the stable, and creates a harmonious barrier between hall and sculpture. The interior arrangement of the rooms makes use of two orthogonal lines of sight, which combine the low ceiling height with a generous amount of space.
The modern furnishing of the Maiensäss includes two large bedrooms, a smaller bedroom with two bunk beds, and a spacious dining area with an open kitchen and a small sitting area, which is characterised by the new soapstone stove.
(text source: website architect)
